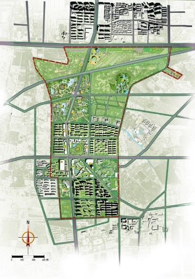
以打造“北京市首个儿童文化创意产业聚集区”为目标,用10年左右的时间,实现聚集区整体高端转型,将儿童产业聚集区打造成为首都建设“世界城市”的重要文化空间载体;面向全国乃至世界的儿童公司总部及研发孵化聚集区;独特的以儿童文化为主题的建筑群和儿童城市风貌聚集区;北京南大门门户形象区;国际儿童文化交流基地、中国文化创意产业示范基地。

北京儿童城集聚儿童福利慈善文化事业、儿童教育、儿童商品、儿童游乐等儿童产业及相关部门的知名总部办公及研发孵化区,形成儿童产业与旅游产业一体化发展的创意产业聚集区。

这里是世界儿童福利慈善总部
这里是儿童文化游乐教育总部
这里是儿童文化产业发展总部